Judend-tyylisen asuinkerrostalon, jossa kohde sijaitsee, rakennusvuosi on 1911 ja arkkitehti oli Edvard Löppönen.
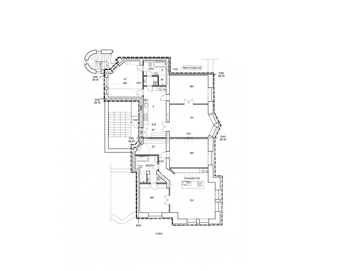
Talon 2.kerroksessa sijaitseva asuinhuoneisto jaettiin kahdeksi asunnoksi rakentamalla huoneistojen väliin uusi osastoiva seinä sekä sulkemalla huoneistojen välinen oviaukko osastoivalla rakenteella. Muutostyön yhteydessä märkätiloja laajennettiin ja keittiöitten sijaintia siirrettiin.
Rakennus oli suojeltu sr-2 -merkinnällä, eli se on rakennustaiteellisesti ja kaupunkikuvan kannalta arvokas rakennus. Muutostöissä ei kajottu kadunpuoleista julkisivuun eikä porrashuoneisiin. Korjaus- ja muutostöissä huolehdittiin siitä, että rakennuksen arvo säilyy, eivätkä ne muuttaneet historiallisia ja rakennustaiteellisia arvoja.
Toimistomme vastasi myös rakenne- ja lvi-suunnittelusta.
